Grand Bend Home Builders: Sol Haven’s Award-winning Team And The Right Home Model For Your Lifestyle
- Sol Haven Grand Bend

- Sep 30, 2025
- 4 min read
When it comes to moving to Grand Bend, choosing the right community is only the first step. The next big decision? Picking the home model that fits your lifestyle. At Sol Haven, we’ve partnered with three award-winning builders—Hazzard Homes, Magnus Homes, and Melchers Developments—to offer a variety of layouts and designs that suit families, young professionals, retirees, and everyone in between.
Here’s a closer look at what each builder brings to Sol Haven, plus a guide to help you match the right model with your way of living.



Meet the Home Builders of Sol Haven.
Hazzard Homes
Hazzard Homes is known for custom designs with premium finishes. Every detail is carefully considered, from open-concept kitchens to luxurious en-suites. Their work has been recognized with awards like Best New Single Family Home up to $900K (2023 London Home Builders’ Association).
Sol Haven hint:
Best for buyers who want a home that feels unique and full of high-end touches.
Magnus Homes
Magnus Homes focuses on modern, innovative layouts where quality is standard. They’ve been recognized across the region, winning Best Home under 2000 ft² (2024 London HBA) and being named to London Inc. Magazine’s “Top 20 under 40.”
Sample Magnus models include:
~2,679 sq. ft. | 4 bedrooms + loft + den | Main floor laundry
~2,215 sq. ft. | Master + den on main | 2 bedrooms in loft
~1,800 sq. ft. | Master + den on main | 2 additional bedrooms
Sol Haven hint:
Best for growing families, remote workers, and buyers who want flexibility with lofts and dens.
Melchers Developments
With over 30 years of experience, Melchers Developments has a reputation for well-designed homes, reliable customer service, and layouts that balance comfort and practicality.
Sample Melchers models include:
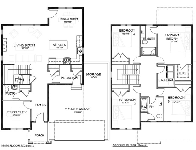
~2,716 sq. ft. | 4 bedrooms | Large ensuite, walk-in closet, study on main
~2,367 sq. ft. | 3 + 1 bedrooms | 2-story with second-floor laundry
~1,919 sq. ft. | 3 bedrooms | 2 baths, primary suite with ensuite + walk-in closet
Sol Haven hint:
Best for families who want space to grow or buyers looking for thoughtful, family-friendly layouts.
Which Home Model Fits Your Lifestyle?
At Sol Haven, choosing a home isn’t just about square footage—it’s about how the space supports your everyday life. To make it easier, here’s a guide that matches our builders’ models to common lifestyles and priorities.
Lifestyle/Priority | What Matters Most | Best Fit Builder & Model(s) |
Growing Family | Multiple bedrooms, play areas, space for kids, easy access to schools, storage for gear | Melchers’ ~2,716 sq. ft. model: 4 bedrooms, large master suite, study, and plenty of space. Or Magnus’ 4-bedroom + loft + den model for flexible living. |
First-Time Buyers / Young Couples | Manageable size, budget-conscious, efficient layout, lower maintenance | Magnus’ ~1,800 sq. ft. model with a main-floor master + den, plus two upstairs bedrooms. Hazzard can also create smaller, budget-friendly custom homes. |
Empty Nesters / Downsizers | Comfort, single-floor living or minimal stairs, easy upkeep, quality finishes | Hazzard Homes with custom luxury finishes. Magnus’ main-floor master + den plans. Or Melchers’ ~1,919 sq. ft. model with 3 bedrooms and 2 baths. |
Remote Workers / Home Office Needs | Dedicated workspace, quiet den or loft, natural light, separation between home and work | Magnus’ loft + den models or Melchers’ study-on-main layouts are ideal for creating balance between business and living. |
Luxury / High-End Buyers | Custom details, walk-in closets, spa-like en-suites, premium finishes | Hazzard Homes specializes in bespoke, high-end living. Larger Melchers models with walk-in closets and en-suites also shine. Magnus’s larger builds offer a premium touch, too. |
Things to Consider When Choosing
Even once you’ve narrowed down your builder and model, it helps to think about the finer details that will affect how you live day to day:
Lot size/yard space — Even the most beautiful floor plan can feel tight if you love being outdoors, gardening, or hosting family barbecues.
Future flexibility — Consider how your life may change. Will your family grow? Do you want space for guests or an aging-in-place design? A loft or extra bedroom adds long-term value.
Maintenance & utility costs — Larger homes cost more to heat, cool, and maintain. Premium finishes may need additional care.
Layout flow — Features like main-floor laundry, a den or study on the main floor, or a main-level master suite can make everyday living smoother for the right household.
Resale value — Some features, like walk-in closets, spa-like en-suites, and high-quality finishes, appeal broadly. A model that balances your preferences with wider market demand may pay off in the future.
Final Thoughts
Each builder at Sol Haven offers strong choices. The “right” model depends a lot on how you live now—and how you expect to live in 5-10 years. If you:
Want room to grow → go with a larger 3- or 4-bedroom + loft or den model (Magnus, Melchers).
Prefer low maintenance and simplicity → a well-finished mid-size home (Magnus or Hazzard) might suit better.
Looking for luxury touches and custom detail → Hazzard Homes or top-end models from Melchers are great options.
Whichever you choose, Sol Haven gives you the chance to build a home that’s more than just a place to live—it’s a place that supports the way you want your life to feel in Grand Bend.
Ready to Explore Your Options?
Whether you’re looking for a family home, a quiet retreat, or a downsized space with all the right finishes, Sol Haven has a model for you. Explore our builders, floor plans, and community vision to find the home that feels like the right fit.






























Comments